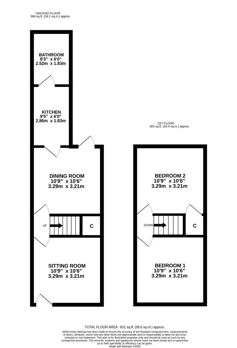
Location
46 Rendlesham Road, Ipswich, Suffolk, IP1 2LY
*Guide prices are provided as an indication of a vendor’s minimum expectation and the level at which the reserve is set. Properties may not always sell within this guide and this figure may change at any time prior to the auction. The sale price will be dependent upon bidding in the auction room and on the Vendors’ instructions.
Reserve Price Each property will be sold subject to a reserve price, which will be set within, or below, the guide price range or no more than 10% above a single figure guide. This is a confidential figure set between the Vendor and the Auctioneer and is a figure below which the Auctioneer cannot sell the property.
Additional Fees All buyers are liable to pay an Administration Charge of £1,200 inclusive of VAT. Other fees disbursements may also apply, therefore before making a purchase, please refer to the Legal Pack and Special Conditions.























